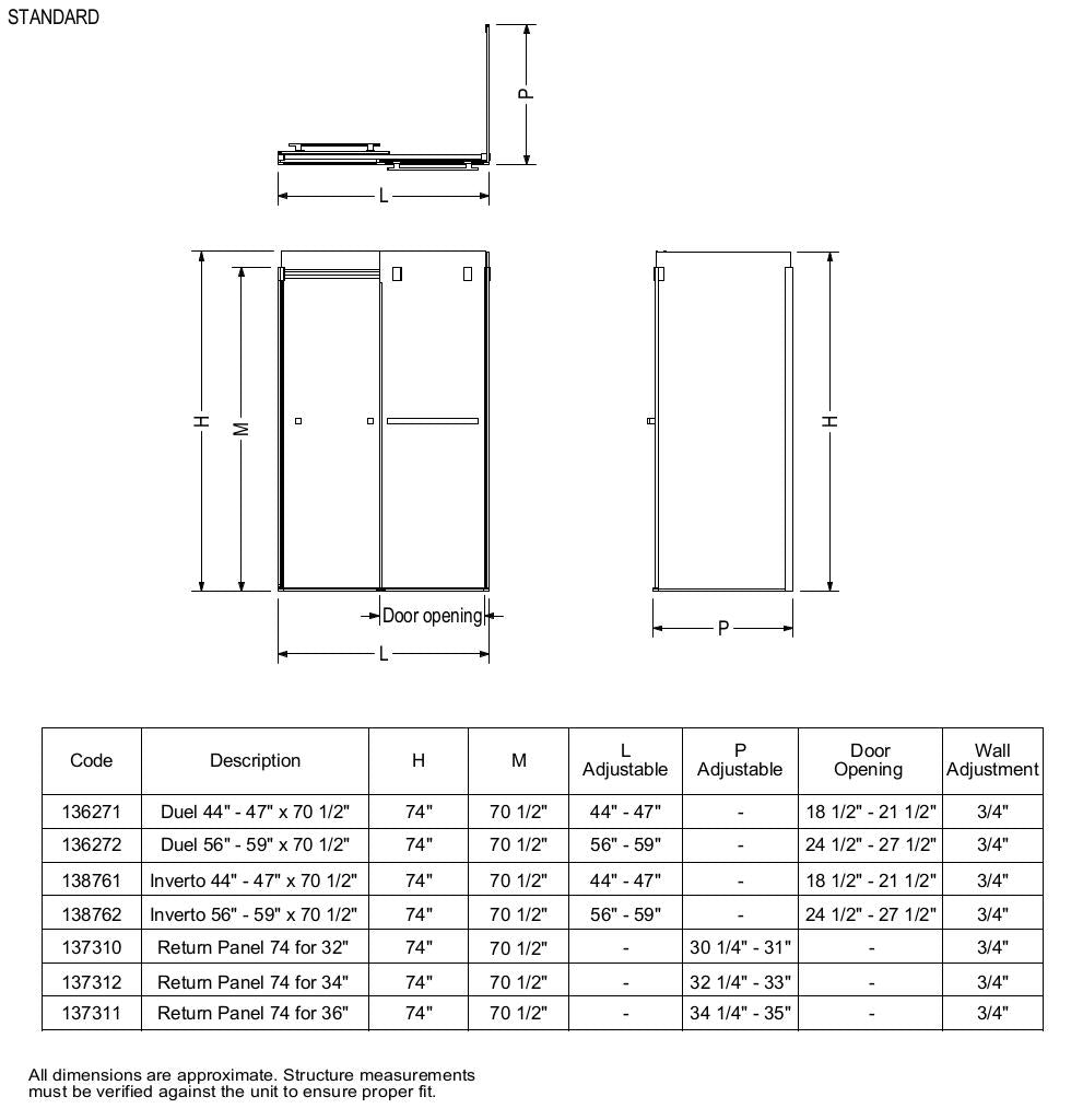
Duel and Inverto Return Panel for 34 in. Base with Clear glass in Chrome
Description
Description
- Configuration consists of a single panel to be combined with a Duel shower door
- For corner showers and for tile or pre-cast wall installations 74" and higher. For an optimal fit we recommand the Duel collection doors.
- 74in high clear glass panel
- 8mm (5/16 in) tempered certified glass panel
- Glass panels come with the Lotus Easy Clean Glass Protection to repel soap and water stains for carefree maintenance
- Reversible panel for easy corner installation on the left or on the right
- Out of plumb adjustment in the wall profile
- Easy assembly between door and return panel
- Due to the weight and height of the glass, we recommend a 2 person team to install this product
Maax Attribute
- Door Type : Fixed
- Frame Type : Frameless
- Installation Type : Return Panels
- Number of pieces : One
- Residential Warranty : 10 Years
Maax Characteristics
- Available in Multiple Finishes
- Lotus Easy Clean Glass Protection
- Wide Opening
Materials & Finish Specifications:
Glass Pattern: Clear
Specifications
- Length
- —
- Width
- —
- Height
- —
- Weight
- 29.0 kg




